︎
Horacio Schmidt Radic
Arquitecto
Información
Instagram
Vivienda
Institucional
Territorio
Concurso
Publicaciones
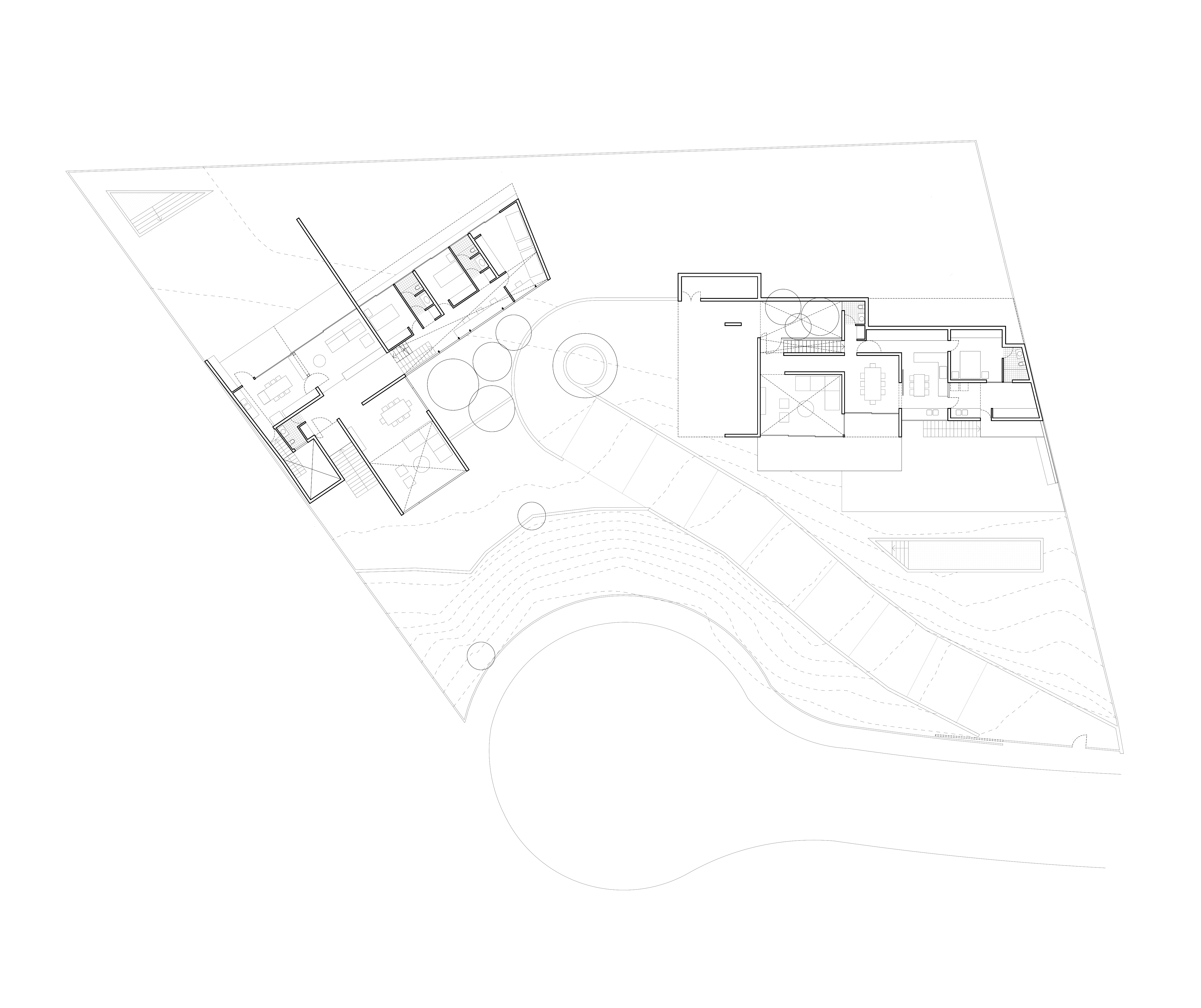
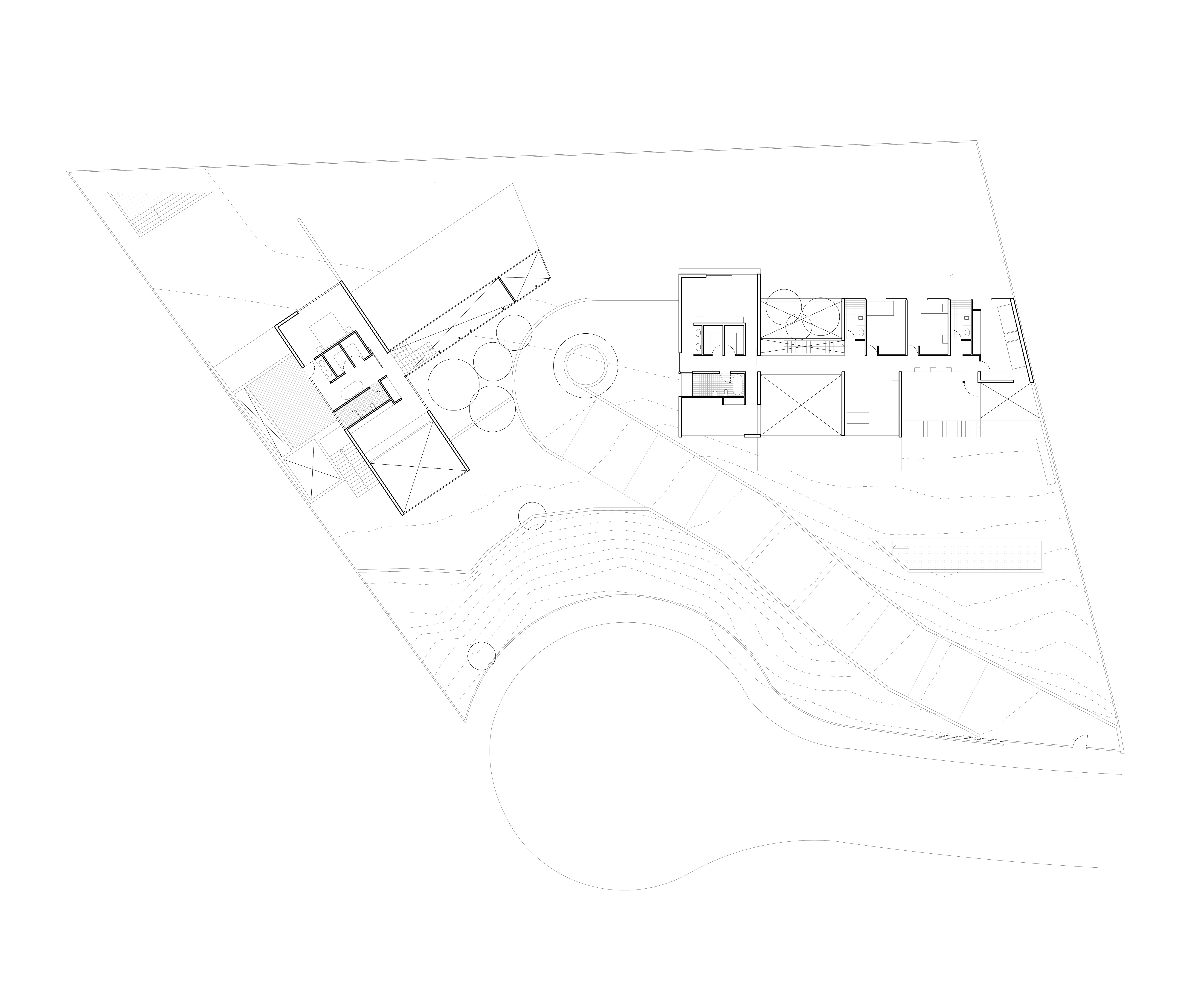
Conjunto Vía Aurora I
Lo Curro, Santiago
2017
Año del Proyecto: 2017
Arquitecto: Horacio Schmidt R
Superficie Terreno: 2500 m2
Superficie Proyecto: Casa A: 320 m2 Casa B: 450
Ubicación: Lo Curro, Santiago de Chile
Horacio Schmidt Radic 2019
contacto@horacioschmidt.cl
Del Inca 4929, Las Condes, Santiago, Chile
Instagram