Casa Zenteno
Zapallar
2017
Año del Proyecto: 2017
Arquitecto: Horacio Schmidt
Colaboradores: Paloma Sánchez
Constructora: Alfredo Martinez
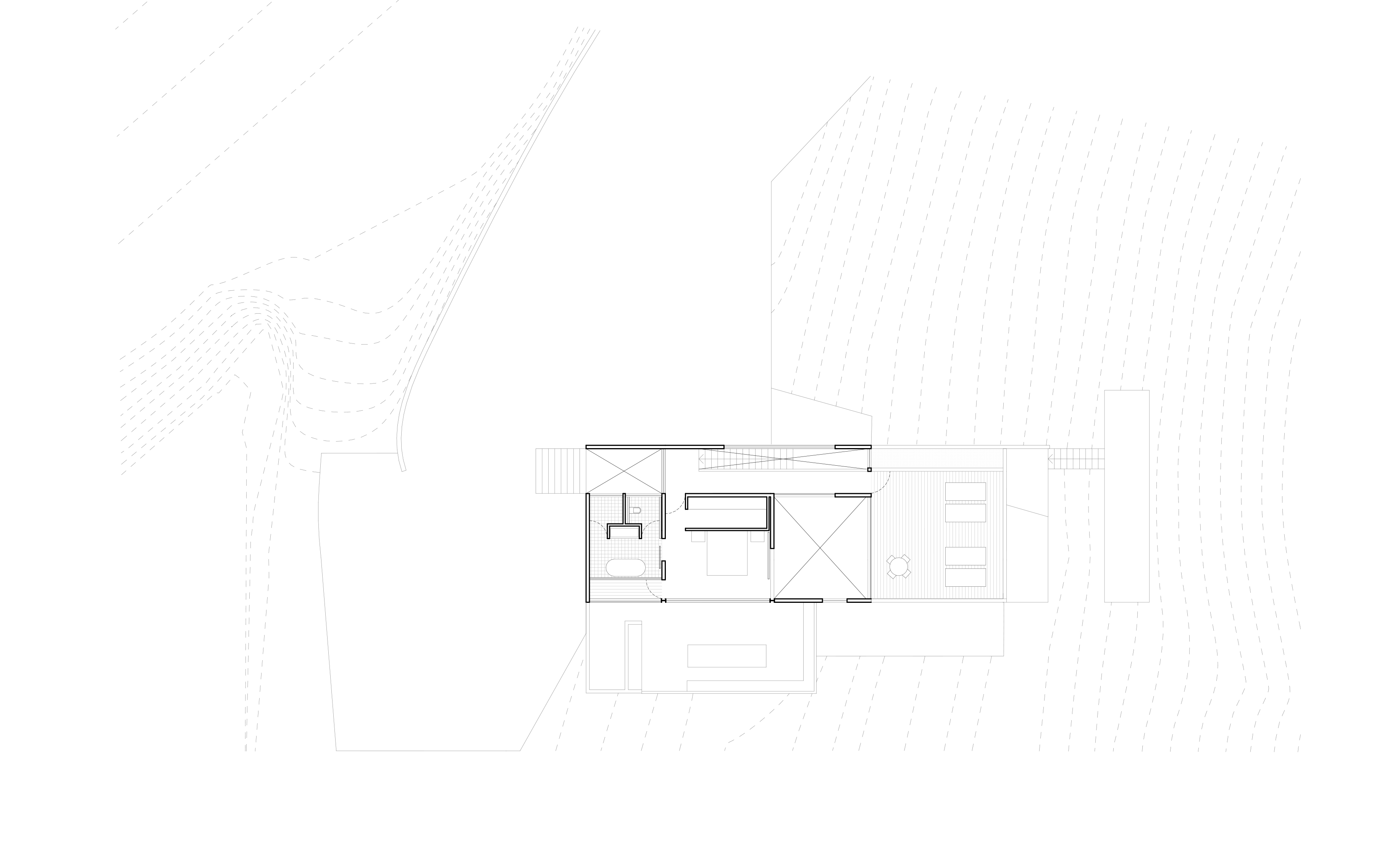
Superficie Proyecto: 280 m2
Ubicación: Zapallar
Zapallar
2017
Año del Proyecto: 2017
Arquitecto: Horacio Schmidt
Colaboradores: Paloma Sánchez
Constructora: Alfredo Martinez
Superficie Proyecto: 280 m2
Ubicación: Zapallar