︎
Horacio Schmidt Radic
Arquitecto
Información
Instagram
Vivienda
Institucional
Territorio
Concurso
Publicaciones
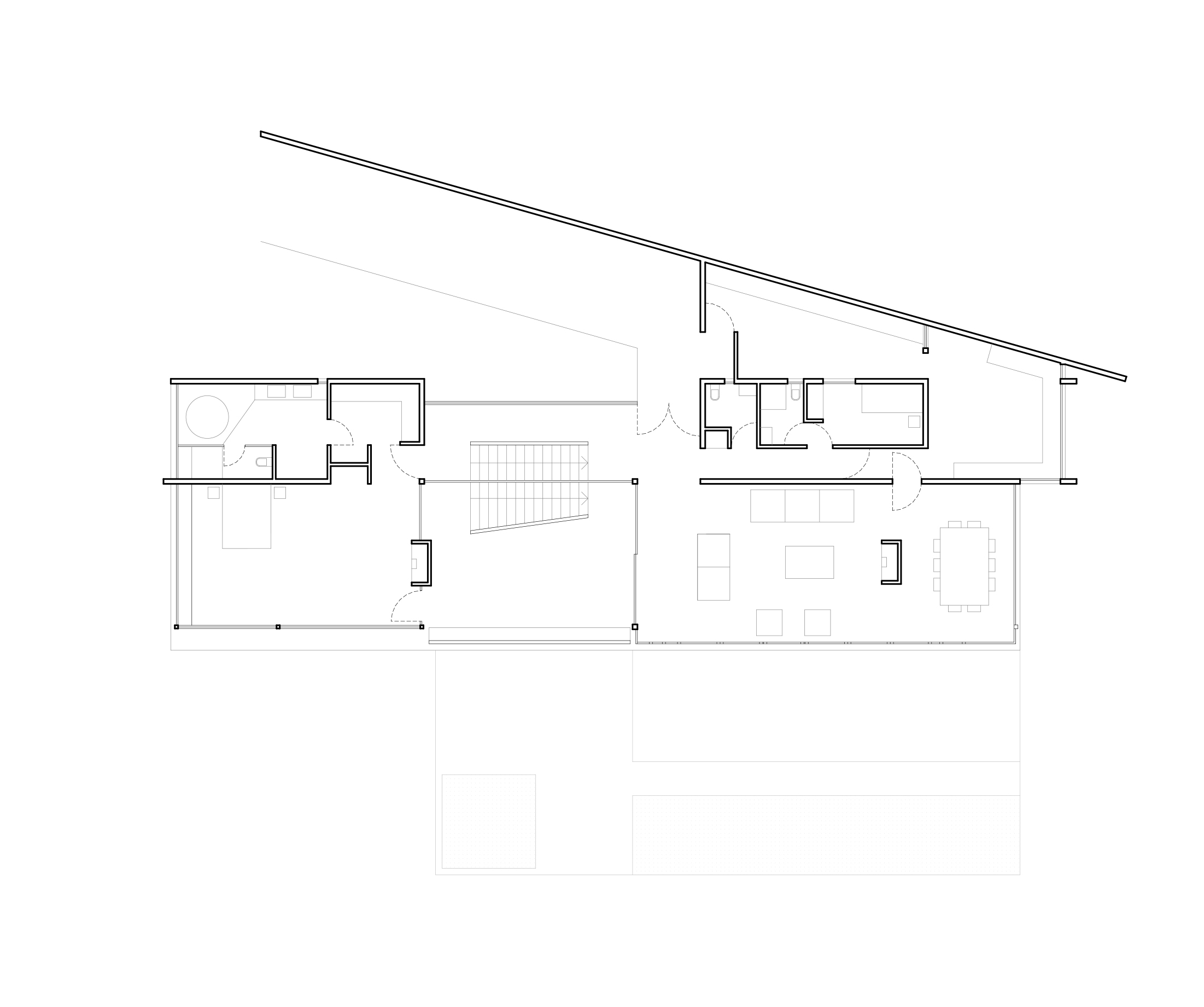
Casa Radic
Zapallar
1997
Año del Proyecto: 1997
Superficie Terreno: 2500 m
2
Superficie Proyecto: 300 m
2
Ubicación: Zapallar
Horacio Schmidt Radic 2019
contacto@horacioschmidt.cl
Del Inca 4929, Las Condes, Santiago, Chile
Instagram