
Casa Lyon
Zapallar
2009
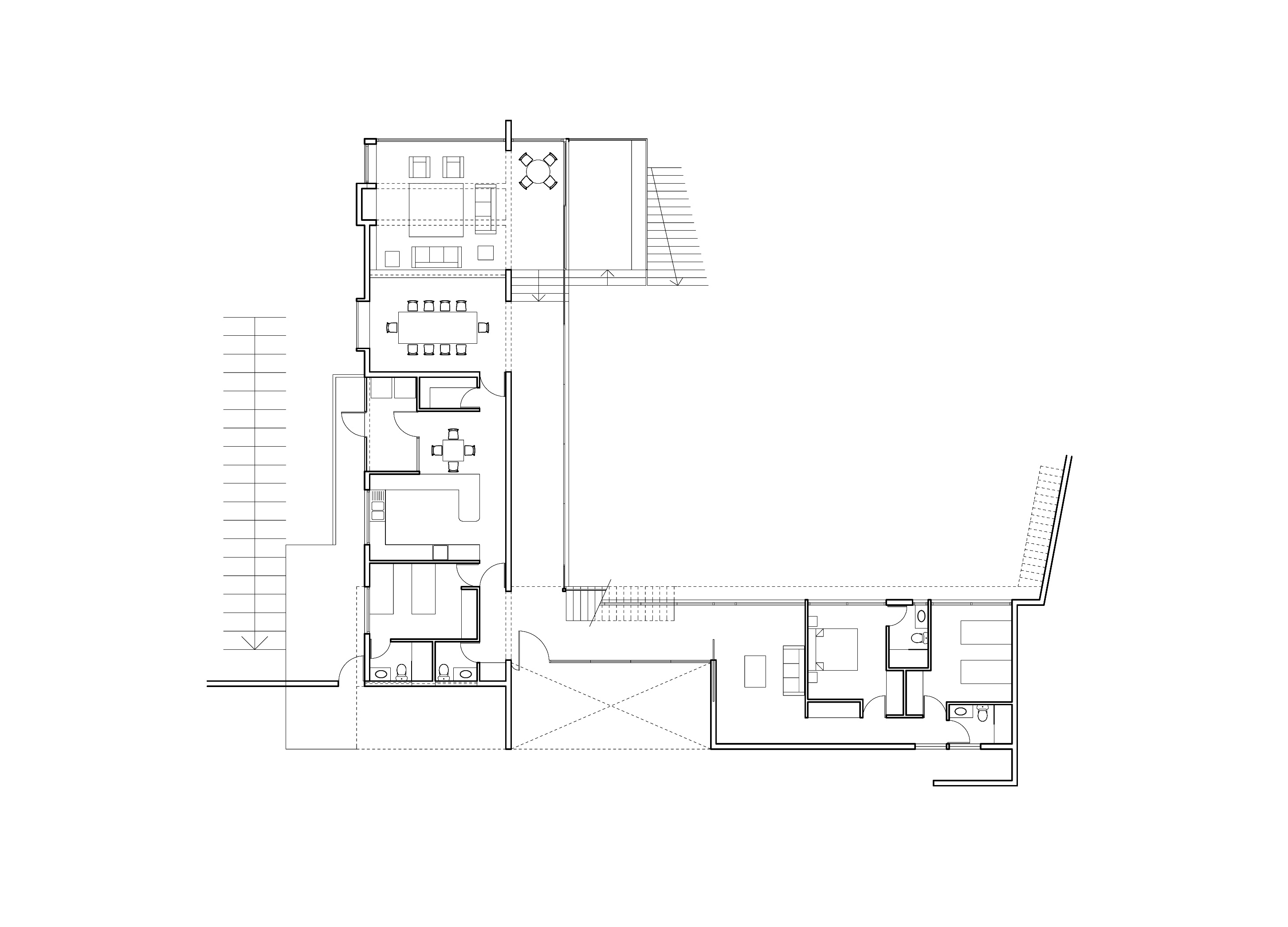
Ubicada en un terreno orientado al Norte y de fuerte pendiente, el volumen de la casa se plantea como límite-contención encerrando un jardín relativamente plano y protegido del viento sur predominante. En torno a este “patio” se dispusieron las circulaciones principales, generando una continuidad con el espacio exterior. Estas circulaciones actúan también como espesor, protegiendo los recintos de la luz excesiva. Los ventanales que cierran los espacios, se diseñaron como membranas invisibles, empotrados a las lozas incrementando la ilusión de continuidad espacial.
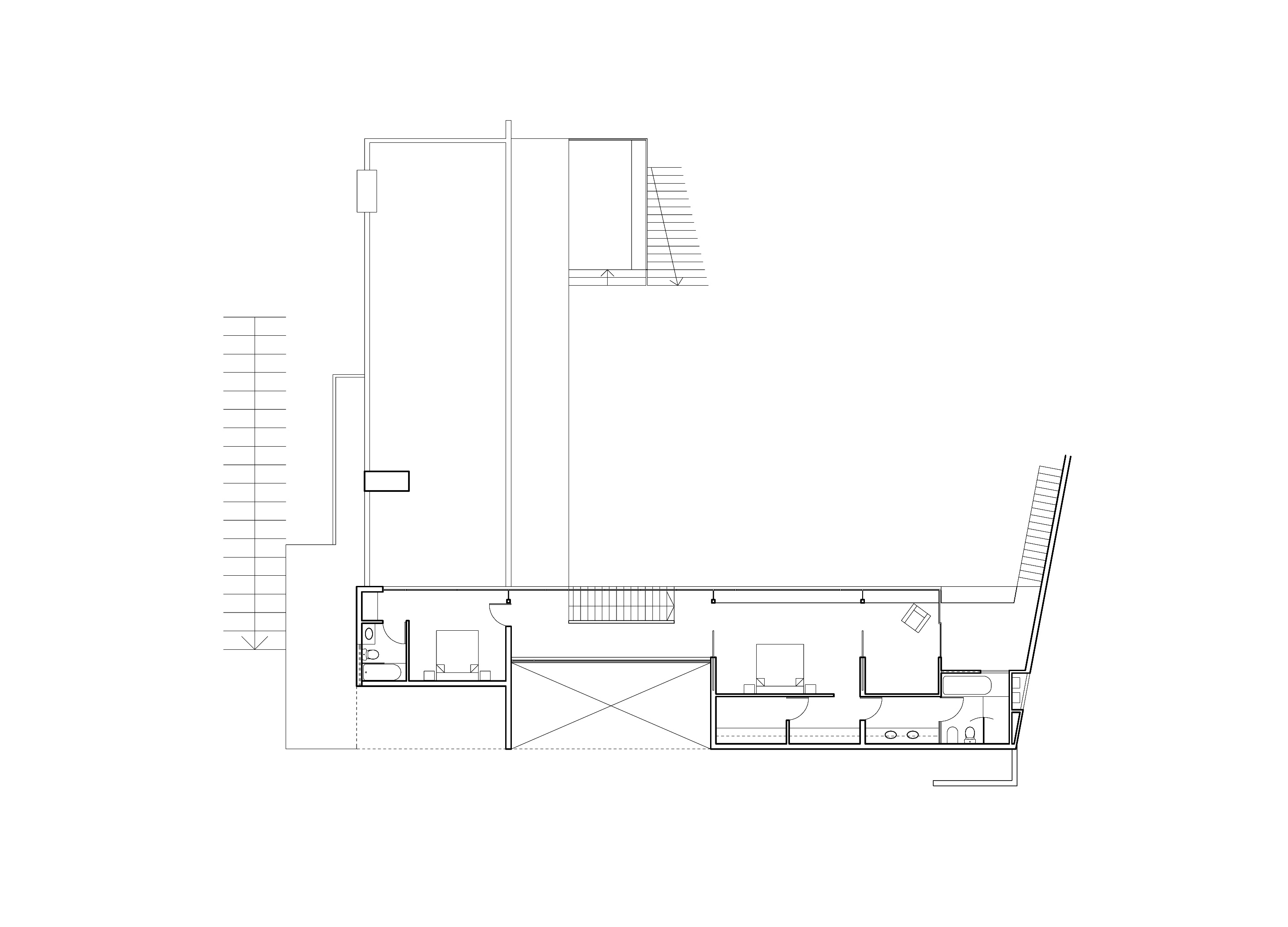
La situación del terreno a cierta distancia del mar y las vistas condicionó la disposición del volumen principal que se proyecta sobre el terreno. De esta manera el estar principal y el comedor se aíslan del terreno inmediatamente circundante y se enfocan en el horizonte lejano y el mar. Bajo estos recintos se diseño una terraza cubierta con chimenea que se relaciona con un nivel inferior del jardín que incorpora la piscina.
Año del Proyecto: 2009
Arquitecto: Horacio Schmidt R
Constructora: Saavedra y Zegers
Cálculo: Enzo Valladares
Constructora: Salvador Errazuriz
Superficie Proyecto: 450 m2
Ubicación: Zapallar, Chile
Zapallar
2009
Ubicada en un terreno orientado al Norte y de fuerte pendiente, el volumen de la casa se plantea como límite-contención encerrando un jardín relativamente plano y protegido del viento sur predominante. En torno a este “patio” se dispusieron las circulaciones principales, generando una continuidad con el espacio exterior. Estas circulaciones actúan también como espesor, protegiendo los recintos de la luz excesiva. Los ventanales que cierran los espacios, se diseñaron como membranas invisibles, empotrados a las lozas incrementando la ilusión de continuidad espacial.
La situación del terreno a cierta distancia del mar y las vistas condicionó la disposición del volumen principal que se proyecta sobre el terreno. De esta manera el estar principal y el comedor se aíslan del terreno inmediatamente circundante y se enfocan en el horizonte lejano y el mar. Bajo estos recintos se diseño una terraza cubierta con chimenea que se relaciona con un nivel inferior del jardín que incorpora la piscina.
Año del Proyecto: 2009
Arquitecto: Horacio Schmidt R
Constructora: Saavedra y Zegers
Cálculo: Enzo Valladares
Constructora: Salvador Errazuriz
Superficie Proyecto: 450 m2
Ubicación: Zapallar, Chile





